Portfolio
Moikka!
Täältä löydät pienen kokoelman projekteja, joita tein opintojeni aikana Lahden Muotoiluinstituutissa. Kasvaminen ammattilaiseksi on ollut sekoitus luovuutta, ongelmanratkaisua ja paljon oppimista matkan varrella.
Selaa rohkeasti ja kurkista siihen, mikä on inspiroinut minua matkani varrella..
Lillukka 40-luvun hirsimökin kunnostus
Tavoitteena oli laatia peruskorjaus- ja sisustussuunnitelma 1940-luvulla rakennetulle alkuperäisessä kunnossa olevalle hirsimökille.Suunnittelutyötä tukivat tutkimus hirsitalojen historiasta, 1940-luvun estetiikasta sekä käyttäjien kanssa tehty haastattelu.
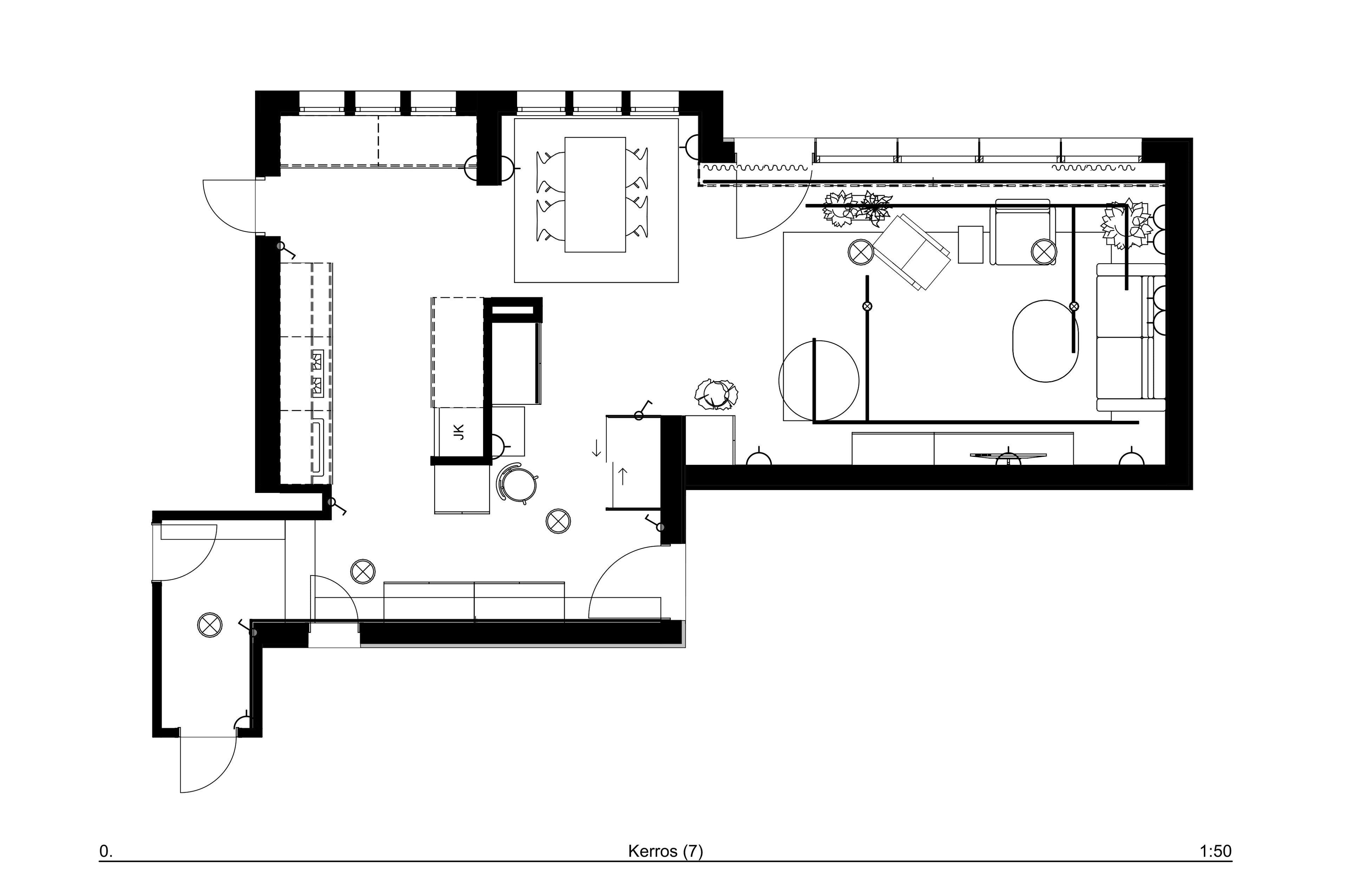
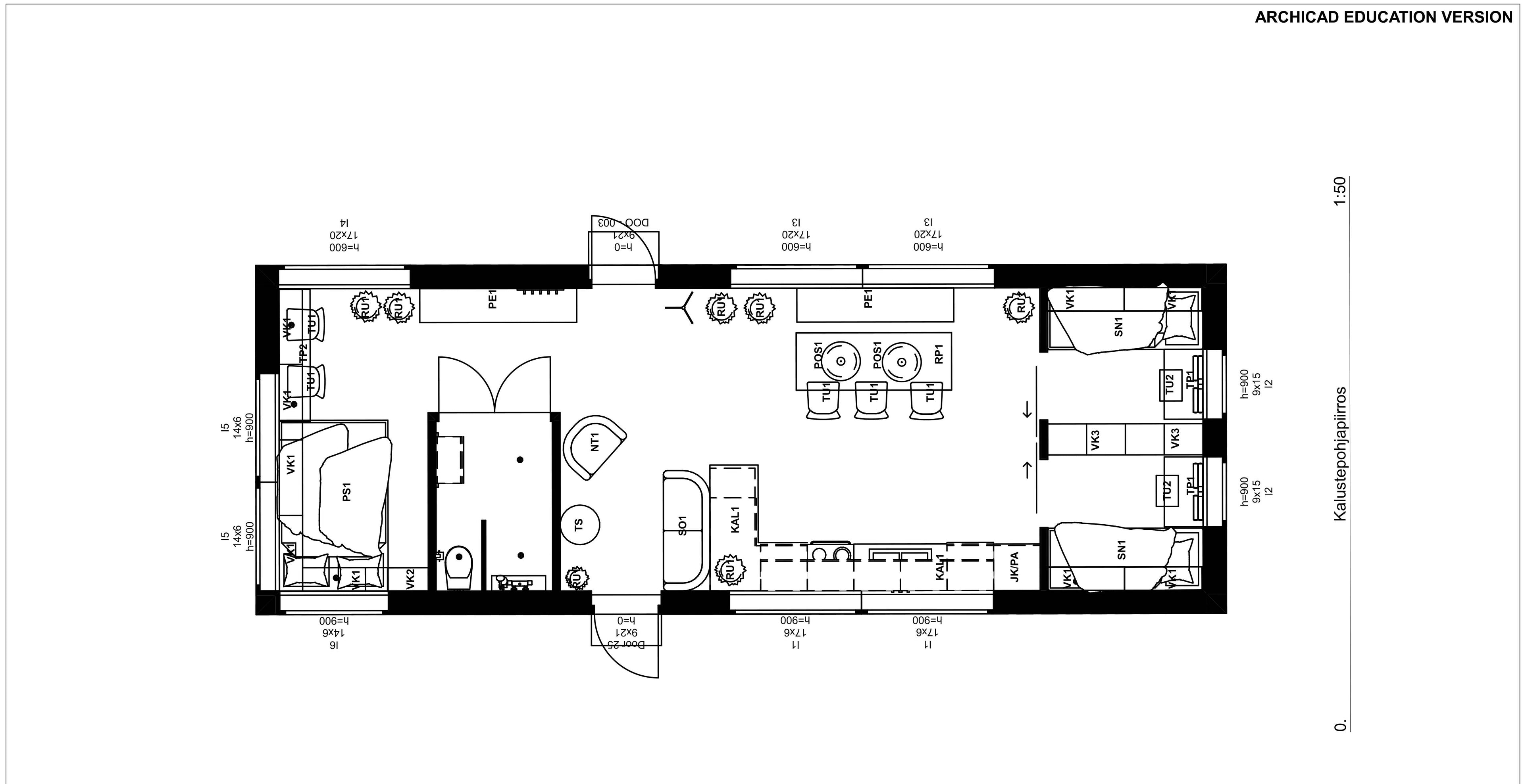
Konttikoti
Työn tavoitteena oli suunnitella pienehkö koti nelihenkiselle perheelle, ja suurin haaste oli rajallinen neliömäärä sekä kaikkien tarvittavien toimintojen sovittaminen tilaan käytännön läheisesti ja tehokkaasti.
Valaistussuunnittelu
Tässä projektissa haasteena oli suunnitella älykäs valaistuskonsepti, joka ei olisi pelkästään kaunis, vaan myös tekisi arjesta mukavampaa ja vaivattomampaa. Pou Interiorilla suorittamani harjoittelun aikana kehitin suunnittelukonseptin, loin kohteesta renderöinnit ja laadin tekniset piirustukset vision toteuttamiseksi. Lopputuloksena syntyi valaistussuunnitelma, jossa design ja teknologia sulautuvat saumattomaksi kokonaisuudeksi.
Muita projekteja
Tässä on sekalainen kansio projekteja joita olen toteuttanut koulussa tai vapaa-ajalla. Löytyy keramiikkaa, taidetta ja kalusteita.